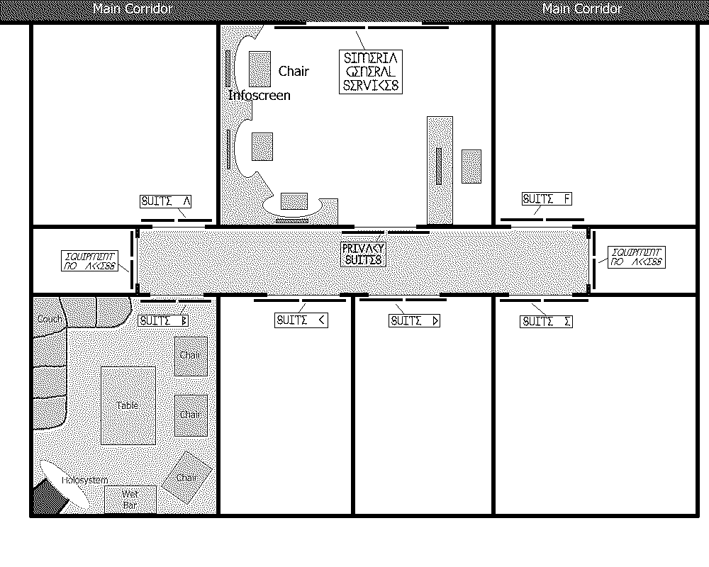
Simeria General Services offices

The Simeria General Services offices

These are the offices located at the main northwest Keuschburg customs station.

Jump to: [Main Spheres PBEM page][Spheres page]


This page (http://www.jiawen.net/simeria2.html) and all contents designed and ©2000 by Rachel Kronick.   Last updated June 24, 2000.